
KENTPARK
- PROJE ALANI: 3000m2
- DAİRE: 36
- DÜKKAN: 3
3,5+1 | 4+1
FİYAT AL!
DETAYLAR & PLAN
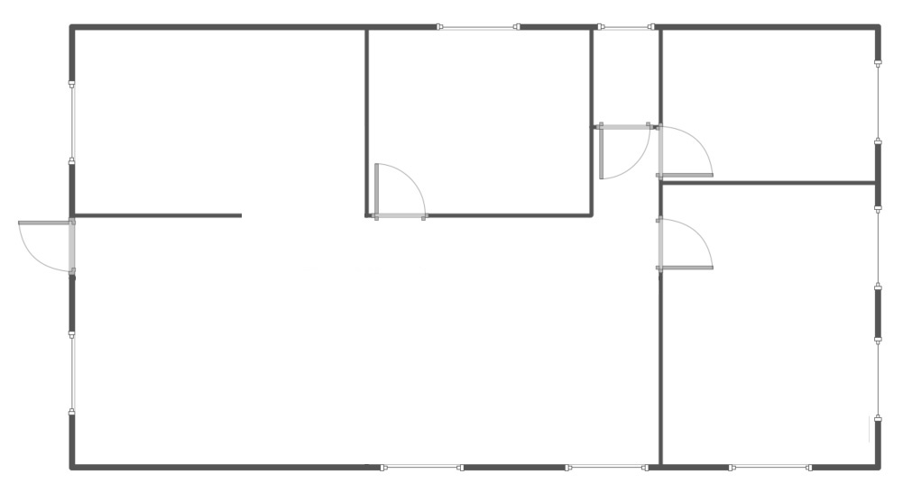
- m² (Brüt):
- 180m2
- m² (Net):
- 140m2
- Oda Sayısı:
- 3,5+1
- Banyo:
- 2
- Balkon:
- 2
- Giyinme Odası:
- 1
Blok A
Galeriyi açmak için odaya tıklayın...
Mutfak
Mutfak
Toplam Alan: 16m2
Yatak Odası
Yatak Odası
Toplam Alan: 12m2
Banyo
Banyo
Toplam Alan: 12m2
Salon
Salon
Toplam Alan: 12m2
Oturma Odası
Oturma Odası
Toplam Alan: 12m2Bina Özellikleri
DAHA GÜÇLENDİRİLMİŞ BİR ZEMİN JET GROUT KAZIK TEMEL SİSTEMİ
Modern Mimari
DAHİLİ OTOPARK ALANI
AKILLI GÜVENLİK VE İZLEME SİSTEMİ
TOPLANTI SALONU
DAİRELER ARASI ISI YALITIMI
DIŞ CEPHE MONTALAMA
JENERATÖR SİSTEMİ
BİSİKLET ODASI
KASKAD SİSTEM
Erciyes Manzaralı Kış Bahçesi
Şömine ve ısıtma kaloriferli
önü hiç kapanmayacak Erciyes Manzarası sizleri bekliyor.

ATİLLA ÖZ İNŞAAT LTD. ŞTİ.
Bilgi Formu
İletişim bilgilerinizi bize gönderin
SİZİ ARAYALIM..
